??佛山源藝吊頂專注于鋁扣板吊頂行業20年,主營工程鋁扣板,集成吊頂,鋁蜂窩板,鋁方通方管,鋁條扣及鋁單板幕墻,產品廣泛應用于眾多大小型寫字樓、品牌商城、教育機構、醫療康復工程等吊頂工程。
??自主研發,生產,銷售,一站式采購節省20%成本!如果您對“六安鋁扣板批發-鋁扣板批發廠家問鋁扣板主要應用區域大揭秘”感興趣,歡迎來電咨詢 181-3839-3981/181-3839-3981,或點擊網頁右端的客服熱線聊天咨詢,我司將竭誠為您服務。
源藝·公司實力
20年專注鋁扣吊頂板工程研發、生產、安裝,60多種風格,100多種規格
9000+個工程案例,服務高級寫字樓、醫院工程、大型高校眾多領域
擁有大型生產基地,擁有設計、研發、生產團隊數十人,倉儲面積達2000平米
日產量超萬平,采用全自動的生產線,加快出貨速度,嚴格按照交期準時交貨
嚴格的選材標準,優選鋁鎂合金1100,規范化生產流程,遵循ISO9001質量管理體系
9道生產標準,表面處理匠心工藝,杜絕以次充好,保證每一批質量穩定
設計、生產、安裝、提供免費技術服務支持,有效解決客戶工程疑問,讓您無后顧之憂
有完善的售前、售中、售后服務,強大客服團隊一對一全程貼心跟進,讓您舒心放心
鋁扣板批發廠家表示集成吊頂這幾年在吊頂市場中蓬勃發展,越來越受到大家的青睞和喜美利龍源藝,但是集成吊頂和傳統吊頂間到底有什么區別呢?兩者之間有什么優勢呢?跟著鋁扣板批發廠家來看看集成吊頂和傳統吊頂到底哪家強!

你覺得機房微孔鋁扣板吊頂怎么樣呢?佛山美利龍主營旗下“美利龍”和“源藝”兩個品牌的集成吊頂鋁扣板美利龍源藝與半美利龍源藝、集成吊頂電器、工程鋁扣板、鋁格柵、鋁條扣、鋁單板幕墻等鋁質金屬建材,拒絕以次充好,保證質量,歡迎來電咨詢。

六角鋁格柵

鋁扣板的應用還是很全方位的,總是能夠選到一款適合的鋁扣板的!佛山美利龍主營旗下“美利龍”和“源藝”兩個品牌的集成吊頂鋁扣板美利龍源藝與半美利龍源藝、集成吊頂電器、工程鋁扣板、鋁格柵、鋁條扣、鋁單板幕墻等鋁質金屬建材,拒絕以次充好,保證質量,歡迎來電咨詢。

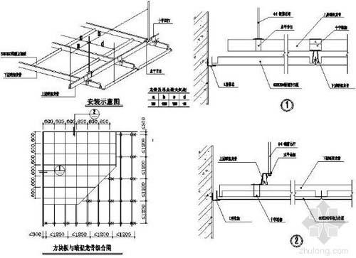
吊頂安裝是我們每個家庭都會經歷的事情,即使是現在越來越多的無吊頂裝飾受到大家的喜美利龍源藝,但是廚房衛生間也還是會安裝上好用的鋁扣板吊頂,但是鋁扣板批發廠家表示我們在安裝后就比較害怕鋁扣板吊頂發生下墜、形變、松脫等狀況,說白了“三分材料,七分裝”,我們在鋁扣板吊頂安裝的時需要注意那些方面呢?可以有效的避免下墜這些情況的發生呢?跟著鋁扣板批發廠家來看看吧!

鋁扣板吊頂適合食堂裝飾嗎?

鋁扣板吊頂適合食堂裝飾嗎?

對于機房這種特殊的場所,不僅里面安裝著大量的儀器更是決定了一個區域的正常使用,一般我們都會給他安裝一個優質的吊頂,鋁扣板批發廠家表示微孔鋁扣板就是一種常用在機房吊頂的材料,那么微孔鋁扣板為什么能安裝在機房呢?機房吊頂又有什么作用呢?我們一起和鋁扣板批發廠家看看機房微孔鋁扣板吊頂怎么樣吧!

鋁扣板批發廠家表示集成吊頂這幾年在吊頂市場中蓬勃發展,越來越受到大家的青睞和喜美利龍源藝,但是集成吊頂和傳統吊頂間到底有什么區別呢?兩者之間有什么優勢呢?跟著鋁扣板批發廠家來看看集成吊頂和傳統吊頂到底哪家強!

二、輔料的費用:包括鋁扣板吊頂的主龍骨及鋁修邊,這些都統稱為鋁扣板吊頂的輔料,鋁扣板批發廠家表示實際上還是輔料的材料為影響的關鍵因素,選用的材料越好那么價格當然也是水漲船高!三、安裝費用,安裝費用這一項就區別于前面兩種了,不是其材料為價格主體,主要影響安裝價格的因素是區域,不同的地區其價格差異較大!鋁扣板批發廠家表示就好比一線城市的人工費用比三線城市的人工費用就相差較大!

2、輕鋼架起吊不堅固:吊頂天花板輕鋼架應起吊在墻美利龍源藝,絲桿螺帽應扭緊,鋁扣板批發廠家表達吊頂鋁天花板內的管路和機器設備應起吊桿懸吊于墻頂,不可直接與當地吊桿相連 3、裝修吊頂高低不平:吊頂龍骨安裝時絲桿校正不用心,各絲桿點海拔高度不一致,先調平在上扣板,鋁扣板批發廠家表達查驗各絲桿點是否緊密連接,再劃線查驗海拔高度和平整度是不是合乎設計方案規定和標準規范的要求。 4.輕鋼架部分連接點的構造不科學:應依據擋孔、照明燈具打孔、排氣管等設計方案規定在相對連接點上設定吊桿便于后期機器設備的安裝。鋁扣板批發廠家表示不能直接懸掛在吊美利龍源藝 5、扣板有空隙彎曲:扣板規格型號有誤差,安裝有誤這些情況都會導致扣板不齊的情況,工程施工時要留意板的規格型號或是是板與輔材中間的規格型號是不是配對,主龍骨豎直且水準,保證安裝固定不動時豎直。

源藝全國服務熱線